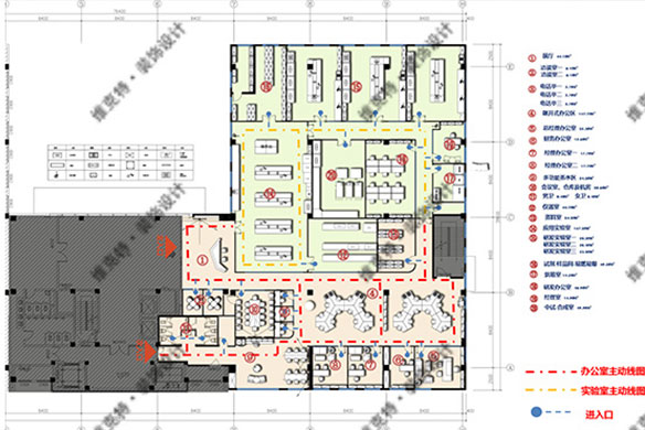
实验室+办公室装修设计 / 1400㎡

实验室+办公室装修设计 / 1400㎡

查看详情

洁净室装修设计

提供免费量房-免费设计-设计包满意

查看详情

苏州海通智能制造5层厂房+办公 / 1.1万㎡

项目位于苏州市木渎镇这边,共五层,一楼主要是车间,二楼是夹层,三四楼主要是车间,五楼办公跟车间各一半。整个项目的设计施工、软装家具、航车、智能仓库、动力用电、暖通、气路布置全部是我们做的。(由于项目面积比较大,所以整个项目的报备也都是我们完成的)

查看详情

洁净室装修设计

提供免费量房-设计包满意-品质施工

查看详情

洁净室装修设计

提供免费量房-设计包满意-品质施工

查看详情

5000平厂区+培训室+食堂,360度全景图展示

项目位于上海奉贤区正博路,一楼主要是车间,二楼跟三楼主要是办公区域。

查看详情

高校实验室装修设计

免费提供上门量房-设计包满意-品质施工

查看详情

5000㎡厂区+办公,完工现场展示

项目位于上海奉贤区正博路,一楼主要是车间,二楼跟三楼主要是办公区域。(甲方公司名称:泰事达机电设备有限公司为西班牙Telstar在上海的全资子公司。负责集团内层流技术相关设备及实验室产品在中国的销售和售后服务。 主要产品包括: 实验室冻干机; 中试型冻干机; 生物安全柜; 超净工作台; 制药行业隔离器; 实验室用真空泵; 以及与层流技术相关的各种工业及医疗设备。)

查看详情

某私立学校实验室装修设计

免费提供上门量房-设计包满意-品质施工

查看详情