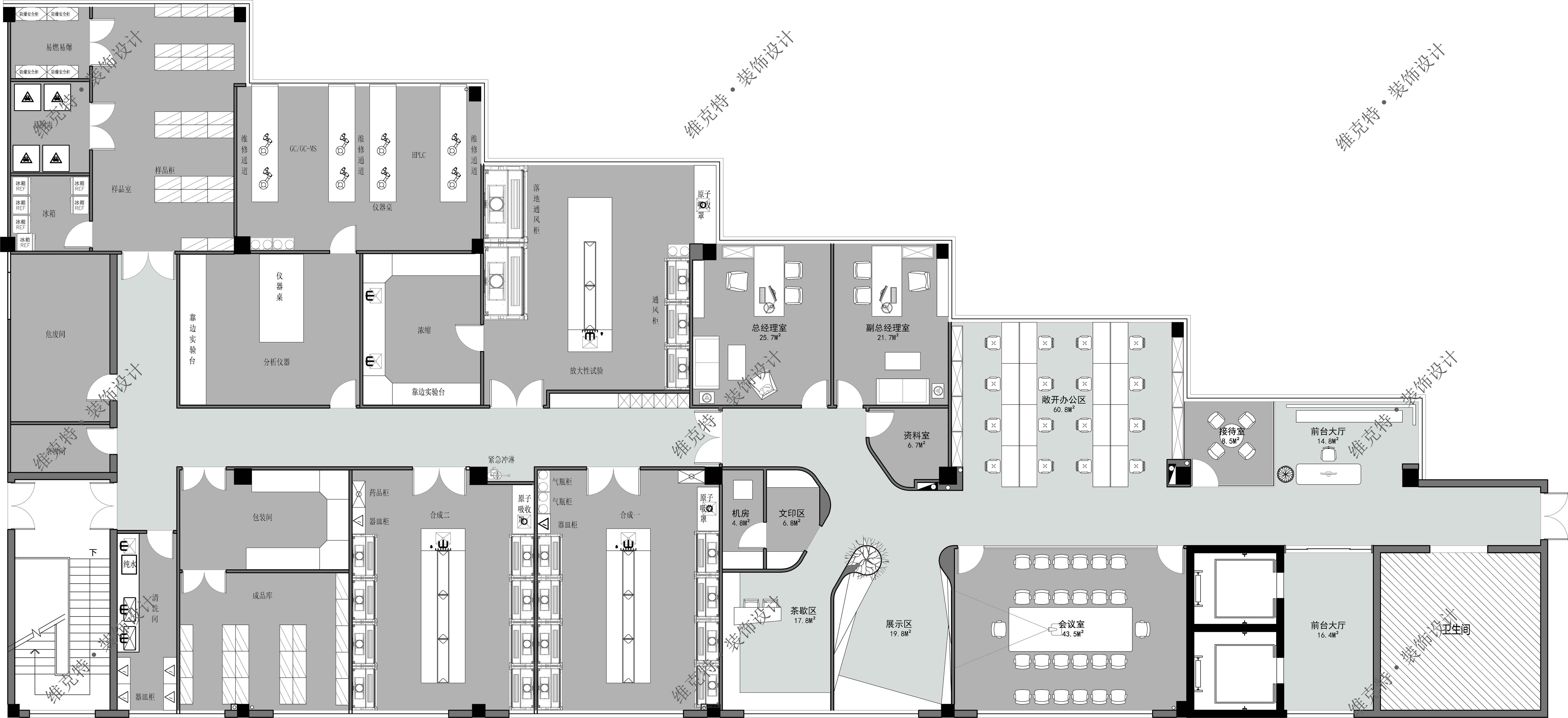
项目特点就是对风量的需求非常大,对通风系统的控制要求非常高。
这是一个面积1000平出头的化学合成实验室项目,项目地址在上海闵行区这边,我们的设计理念是这样的:
将这个空间分成动静两大块,动线方面的设计非常清晰明了。首先从电梯这个位置出来,就是前台接待大
厅、员工办公室、财务行政区,以及经理办公区的位置,之后全部就是实验室的区域了,这样可以避免人员的相互流动。
这个实验室的特点就是对风量的需求比较大,现场做了2套通风系统,对通风系统的控制要求非常高。化学类
实验室对于化学试剂、易制毒、易制爆要求比较高,我们均按照实验室的安全条例增加了防爆墙,以及泄爆
口,用来保护实验室人员的安全,整个项目户型奇特,最大满足所有功能需求。
项目名称: 化学合成实验室 / 1100㎡
面积: 1100平方
热度: 1830
公司地址: 上海市闵行区罗锦路218号麦腾未来城5号楼312室









