运用的材料主要是:石材 木材 金属 金属面板 锌板 玻璃 钢结构体系
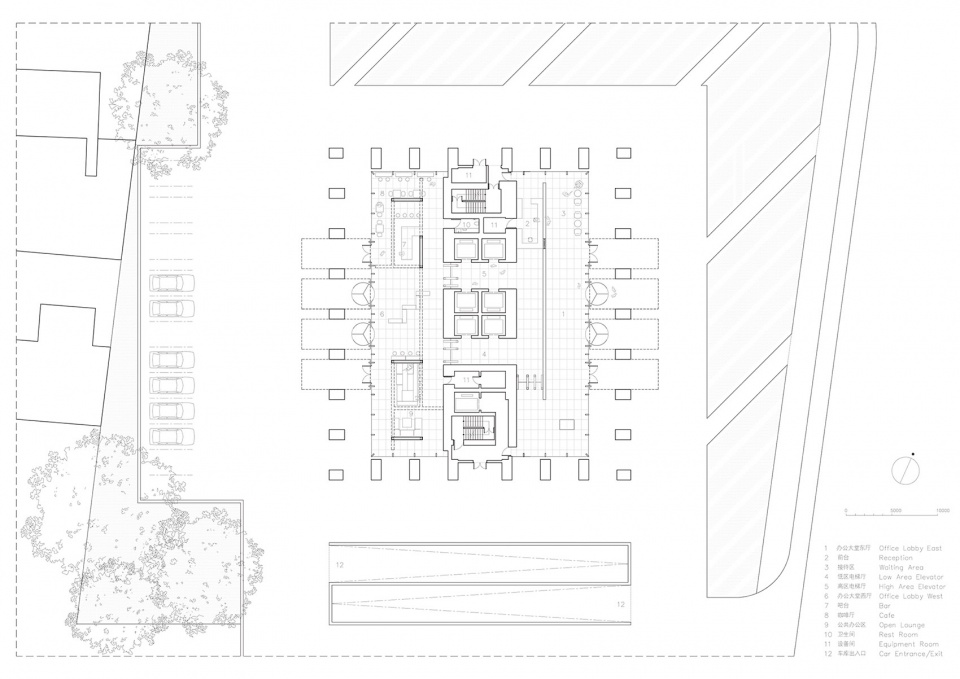
▼平面图
▼剖面图
▼入口望向钛锌板覆盖的超尺度前台
▼吊灯矩阵下的问询区
▼两组黑色家具组成接待区
▼前台南端的闸机出入口
▼从东厅进入西厅
▼折线形高桌组成的交谈区
▼望向公共办公区
▼墙划分下的公共办公区
▼公共办公区望向西厅北端
▼公共卫生间入口望向咖啡区吧台
▼室外望向公共办公区
项目名称: 上海黄浦中心公共空间改造 / 745㎡
面积: 754平方
热度: 1396
公司地址: 上海市闵行区罗锦路218号麦腾未来城5号楼312室









