项目概述 project

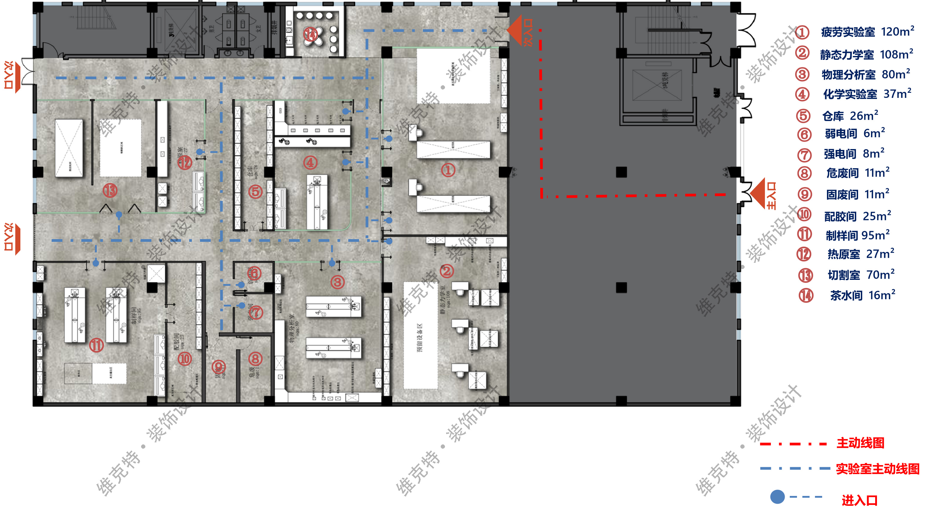
仓库-强电间-弱点间-危废间-固废间布局设计

免费量房-设计-设计包满意-品质施工-超工期赔付


立即获取报价

服务内容 Service
  • 项目名称: 物理+化学+静态力学+疲劳实验室建设 / 700㎡

    面积:       700平方

    热度:       1348

    公司地址: 上海市闵行区罗锦路218号麦腾未来城5号楼312室


新闻资讯推荐 New
服务流程 Process


  • 服务咨询
    1

  • 现场量房
    2

  • 预算制作
    3

  • 施工合同
    4

  • 现场交底
    5

  • 材料验收
    6

  • 中期验收
    7

  • 竣工验收
    8

  • 项目完工
    9

  • 售后维护
    10