项目是在老建筑一个废弃工厂的基础上进行全面改造设计。原建筑因为年份已久的原因,整体框架已部分出现腐锈,而且没有排水排污及供水系统,为了安全稳固性整个建筑的钢结构框架全部重新搭建,并重新设计排水供水系统。所以整个建筑基本是在原地基基础上重新建造的,空间中还利用了一些不可改动的钢结构体丰富了空间的结构感。
建筑落地面积2000方,三层空间,兼具四个大小不同的摄影棚、独立对外经营的咖啡厅、展览空间、办公区、设备展示区、休闲就餐空间等,是一个多功能的复合型文化传播场所,内部到处流露着带有企业文化精神且充满人文关怀气息。值得一提的是,展览空间中还利用超高挑空区设计了两个巨型玻璃体增加空间亮点,同时也为展览提供了独特的艺术展示空间。
▼前厅
▼二楼展览空间
▼导视系统
▼内部结构穿插
▼斜角楼梯
▼一层展览区的玻璃体
▼从二层望向玻璃体
▼艺术长廊
9米层高的影棚 占地550方,拍汽车广告都不成问题,因此还设立了进车入口,顶上搭满桁架供拍摄需要,所以就影棚的专业度上来说毋庸置疑。
▼阳光棚
▼摄影棚配套可供休息的化妆间
▼咖啡厅
▼三层轴线图
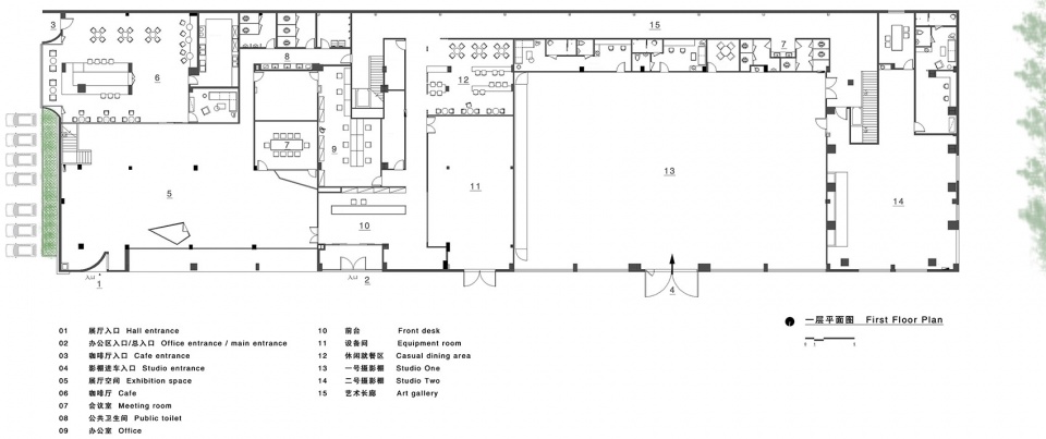
▼一层平面图
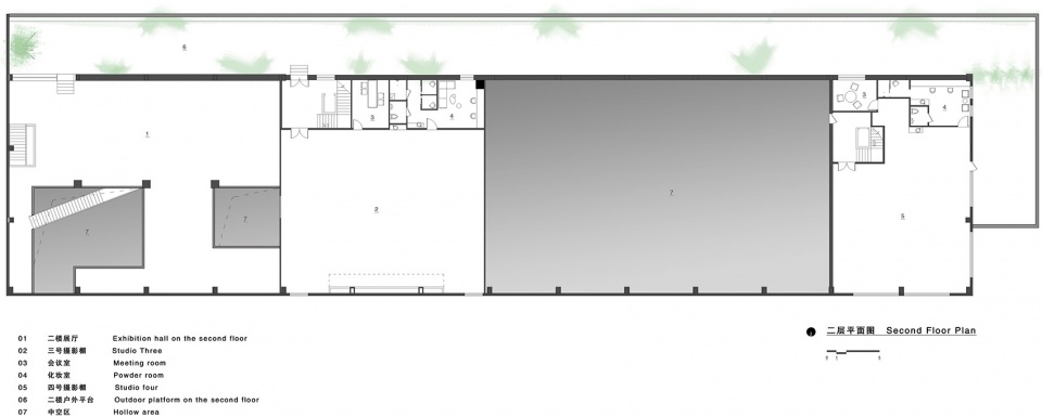
▼二层平面图
▼三层平面图
项目名称: 上德大象摄影机构装修设计 / 1900平
面积: 1900平方
热度: 1622
公司地址: 上海市闵行区罗锦路218号麦腾未来城5号楼312室









