项目概述 project

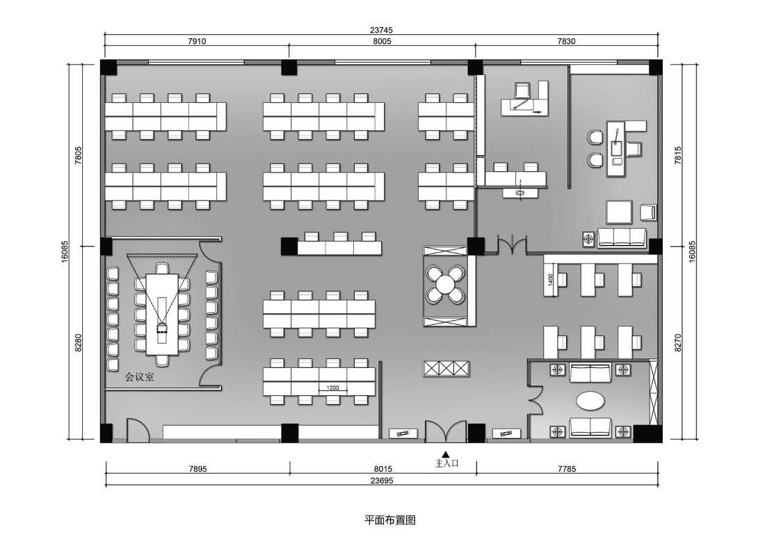
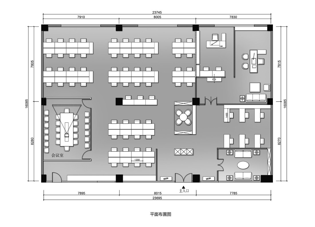
在君懋科技新的办公场景里,既为员工提供了团队协作的区域,也有专注于工作的安静空间,以及休闲惬意的休闲空间。极简的配色和空间构建展现出独特的空间魅力。













免费量房-设计-设计包满意-品质施工-超工期赔付


立即获取报价

服务内容 Service
  • 项目名称: 君懋科技企业办公装修设计 / 300㎡

    面积:       300平方

    热度:       1087

    公司地址: 上海市闵行区罗锦路218号麦腾未来城5号楼312室


新闻资讯推荐 New
服务流程 Process


  • 服务咨询
    1

  • 现场量房
    2

  • 预算制作
    3

  • 施工合同
    4

  • 现场交底
    5

  • 材料验收
    6

  • 中期验收
    7

  • 竣工验收
    8

  • 项目完工
    9

  • 售后维护
    10