项目概述 project

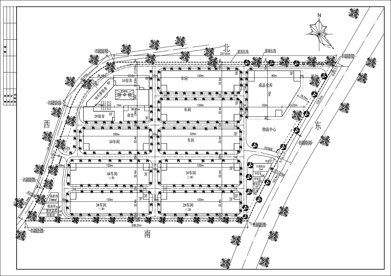
主要经济技术指标:总用地:84107平方米,约126.16亩;建筑占地面积:40382平方米;生产服务设施占地面积:3333平方米;总建筑面积:125151平方米;建筑密度:48.01%;容积率:1.5;生活及配套设施用地率:4.0%;绿化率:19.6%;







免费量房-设计-设计包满意-品质施工-超工期赔付


立即获取报价

服务内容 Service
  • 项目名称: 食品厂厂区综合规划总图鸟瞰图设计

    面积:       84107平方

    热度:       1816

    公司地址: 上海市闵行区罗锦路218号麦腾未来城5号楼312室


新闻资讯推荐 New
服务流程 Process


  • 服务咨询
    1

  • 现场量房
    2

  • 预算制作
    3

  • 施工合同
    4

  • 现场交底
    5

  • 材料验收
    6

  • 中期验收
    7

  • 竣工验收
    8

  • 项目完工
    9

  • 售后维护
    10