项目概述 project

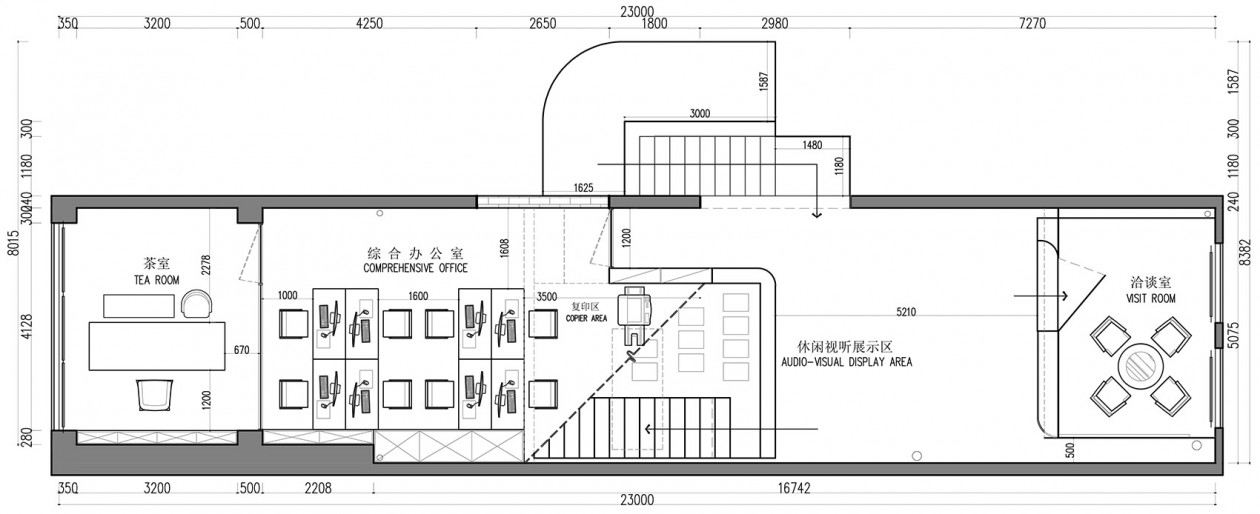
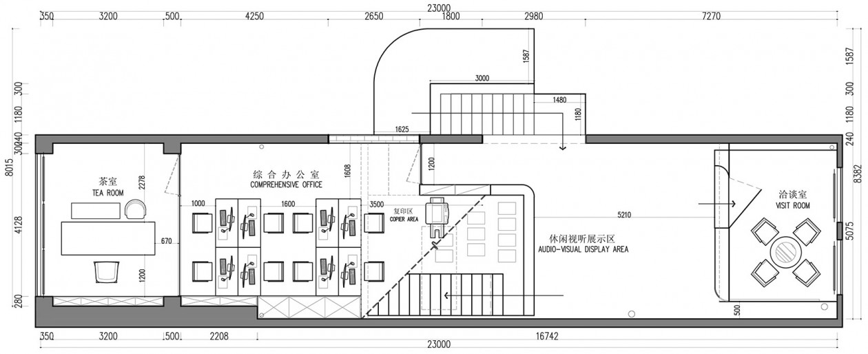
源于一个印刷厂的改造,室内空间长25米,宽5米,通高6米。这对于一个不足十人的小团队而言并不算小,他们有其独特的空间分配方式:除了8个工位和一间领导办公室之外,其它的空间都是为客户准备的。




















免费量房-设计-设计包满意-品质施工-超工期赔付


立即获取报价

服务内容 Service
  • 项目名称: 老厂房改造办公

    面积:       5000平方

    热度:       1519

    公司地址: 上海市闵行区罗锦路218号麦腾未来城5号楼312室


新闻资讯推荐 New
服务流程 Process


  • 服务咨询
    1

  • 现场量房
    2

  • 预算制作
    3

  • 施工合同
    4

  • 现场交底
    5

  • 材料验收
    6

  • 中期验收
    7

  • 竣工验收
    8

  • 项目完工
    9

  • 售后维护
    10