项目概述 project

项目位于上海市普陀区,一二楼是仓库,三楼为办公室,甲方主要做生产 液压元件、密封件、塑料制品,整个项目的设计、施工都是由我们这边承接

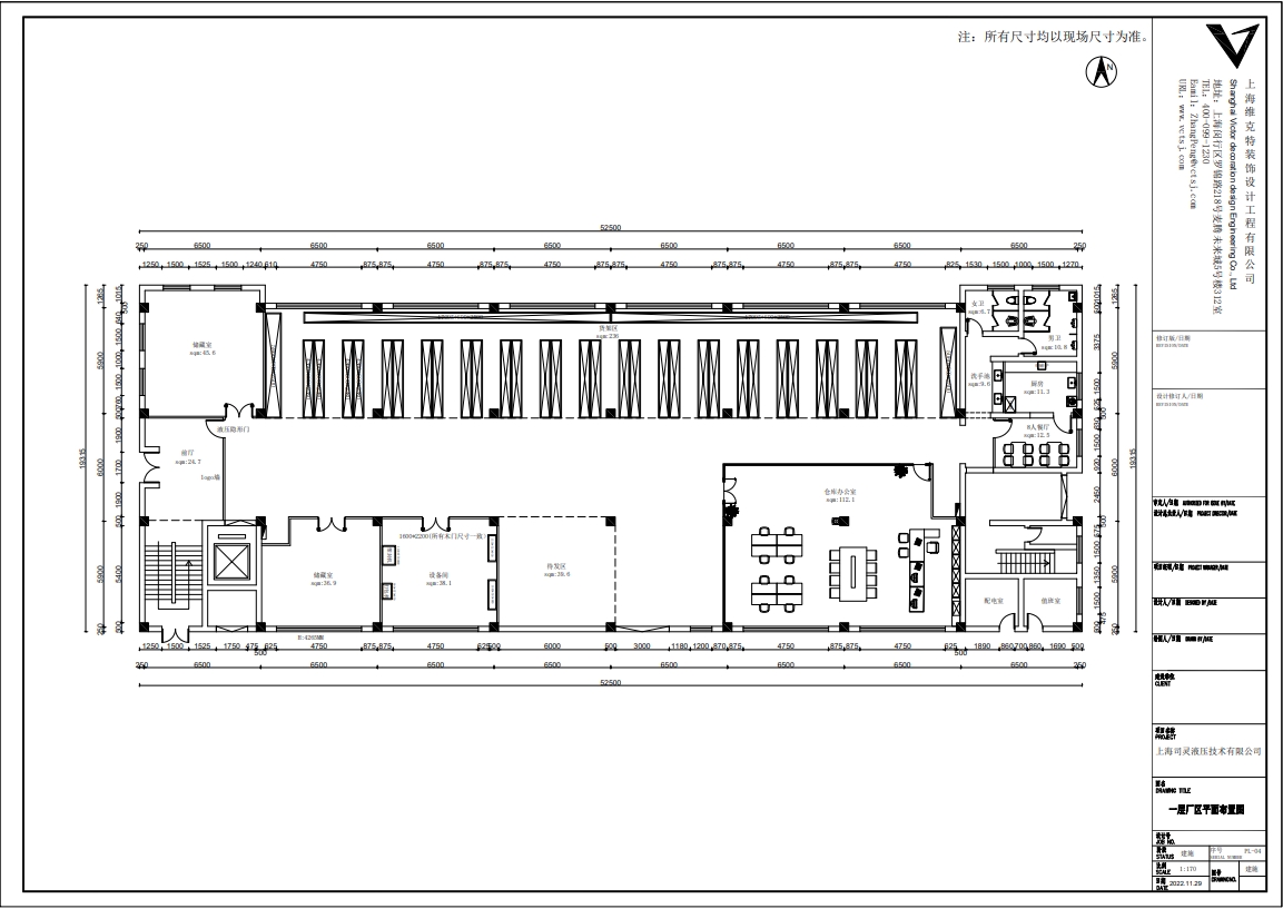
一楼平面布局图

二楼平面布局图


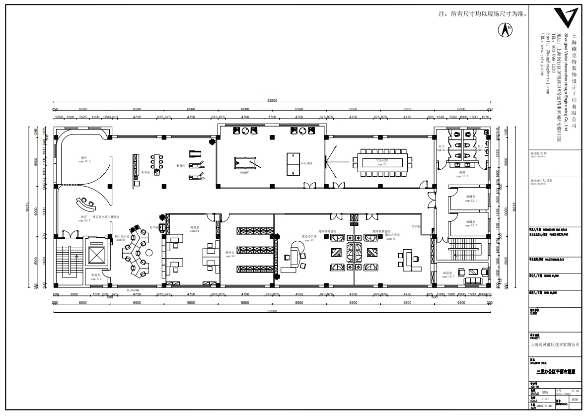
三楼平面布局图


效果图













免费量房-设计-设计包满意-品质施工-超工期赔付


立即获取报价

服务内容 Service
  • 项目名称: 司灵液压仓库+办公装修/2100㎡

    面积:       2100平方

    热度:       1341

    公司地址: 上海市闵行区罗锦路218号麦腾未来城5号楼312室


新闻资讯推荐 New
服务流程 Process


  • 服务咨询
    1

  • 现场量房
    2

  • 预算制作
    3

  • 施工合同
    4

  • 现场交底
    5

  • 材料验收
    6

  • 中期验收
    7

  • 竣工验收
    8

  • 项目完工
    9

  • 售后维护
    10