苏州新洁机器人科技有限公司是一家从事智能机器人研发,智能机器人销售,工业机器人销售等业务的公司,也是老客户介绍的项目!
上海维克特装饰设计工程有限公司,总部位于上海闵行,分公司位于苏州木渎,专注江浙沪地区的 办公、厂房、实验室设计+装修+办公桌椅+循环水处理+气路系统规划+动力用电规划+暖通弱电系统规划服务,同时我们提供整个项目的报备报建服务(面积超过300平的厂房都会遇到的报备难题,装修项目的报备会影响到整个施工周期的长短,也会导致施工成本有非常大的区别),如果装修方面您有任何不太清楚的:①想降低成本的 ②想快速入驻的 ③厂房不知道如何规划设计的 ④不知道装修大概需要多少钱的 ⑤不清楚装修报备事情的,可随时咨询我们,蒋工联系电话/微信:17317769869
~施工现场安全施工,规范施工,文明施工,登高车+安全帽+安全带全部配齐并佩戴好~
完工后照片
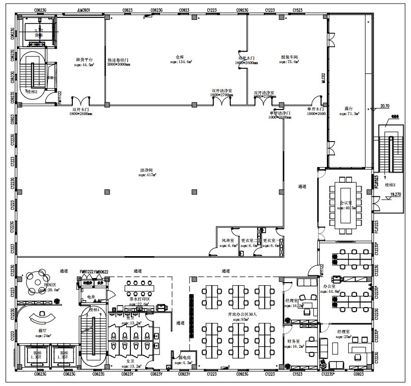
项目名称: 苏州机器人1300㎡洁净车间+办公
面积: 1300平方
热度: 2379
公司地址: 上海市闵行区罗锦路218号麦腾未来城5号楼312室









